Nave Salazones
→
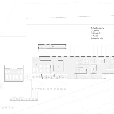
Proyecto de rehabilitación de una nave existente que adapta la estructura original a un nuevo uso, poniendo en valor el espacio interior, la luz y la relación entre los distintos ámbitos del edificio.
Desarrollo del proyecto.















Proyecto de rehabilitación de una nave existente que adapta la estructura original a un nuevo uso, poniendo en valor el espacio interior, la luz y la relación entre los distintos ámbitos del edificio.
Desarrollo del proyecto.















